CL - 21.6.2003
Logo MSA gruen

Siedlergemeinschaft MSA-Siedlung
Dortmund-Scharnhorst e.V.

Entstehung

Baupläne

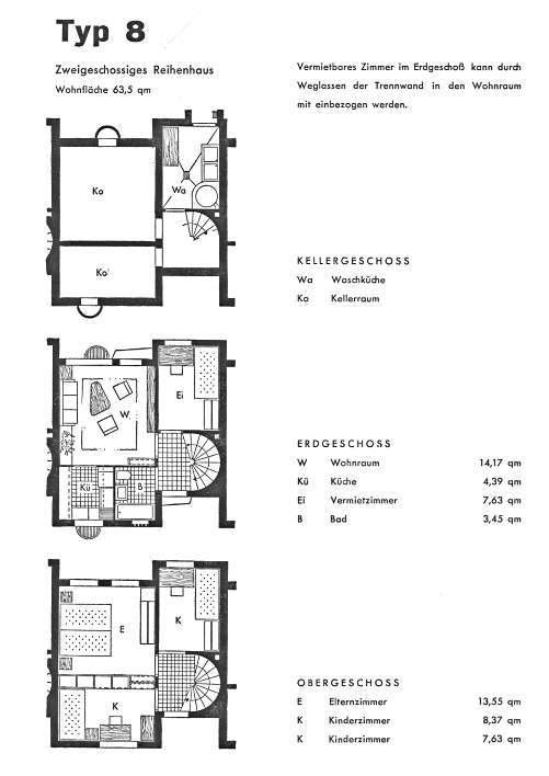
Es gibt in der MSA-Siedlung nur wenige unterschiedliche Haustypen, von denen hier einige mit den Ursprungsplänen (mit den ursprünglichen Wohnflächen) dargestellt werden:

Typ 1: Plan (mit Wohnflächen) Bild Typ 4: Plan (mit Wohnflächen) Bild
Typ 6: Plan (mit Wohnflächen) Bild Typ 7: Plan (mit Wohnflächen) Bild
Typ 8: Plan (mit Wohnflächen) Bild Typ 9: Plan (mit Wohnflächen) Bild
Typ D1: Plan (mit Wohnflächen) Bild Typ D2: Plan (mit Wohnflächen) Bild

Bilder aus der Bauzeit